
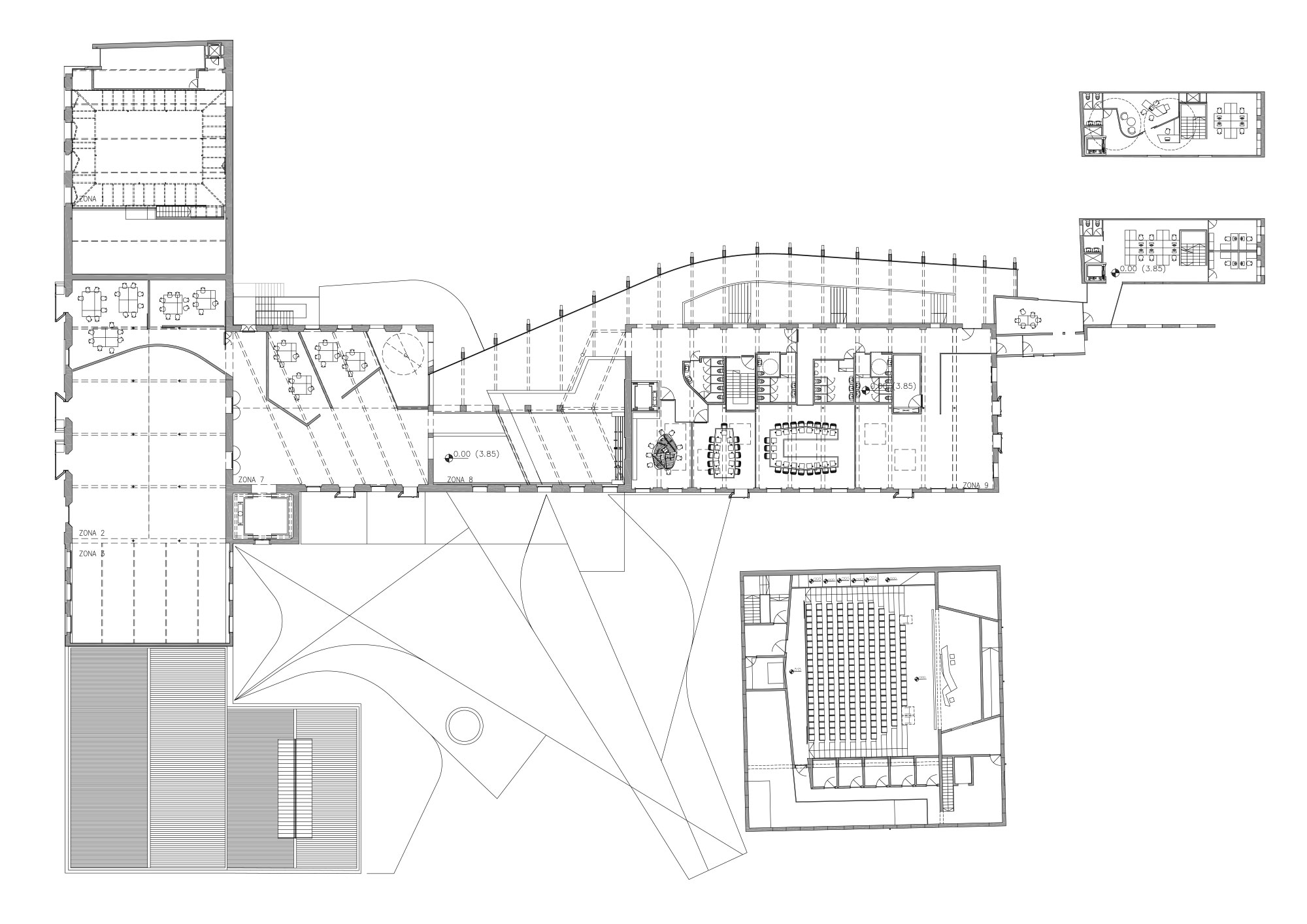
The basic idea to start with is the preservation and revitalization of the most of the industrial complex in competition, a valuable architectonic heritage, by introducing a new intervention in the same way industrial architecture has always done. This intervention takes place in a space which has already been inhabited, which has been used as a working space for more than 150 years and which has a memory that we would like to transfer. The aim of the project is to enhance the quality of the public spaces that the industrial complex already has. These public spaces have to be strengthened so that public space becomes the anteroom of the public building. Every single architectural renovation entails a renovation of its surrounding area. The quality of the public space is therefore considered, the starting point. The exhibition spaces take up the majority of the old space of the first industrial warehouses and the multifunctional halls related to the exhibitions are located in an upper level.



